易德轩福运吉祥商城
商城推荐
太岁锦囊 九星风水 九运摆件 定制摆件
祝由灵符 补缺角牌 厕所化煞 商城资讯
风水用品 化解太岁 灵符符咒 大师服务
五行手链 生肖吊坠 消灾法事 吉祥礼品
风水装修设计对阳宅房子进行一次气场理顺和发掘,住宅或是商业场所现有结构都存在气场上的不合理及影响,通过装修时设计理顺气场调理效果。
1
什么是风水装修设计
3
风水装修设计进行较好
风水装修设计是根据易经风水要求进行全方位调理方案,最好是在未装修前进行进行设计调理,这样效果要强于装修后进行改造,并且也不影响阳宅形象。
风水气场会直接影响居住人及商业公司发展前景,气场不合理对健康、财运及公司发展都有阻力,通过理顺气场,达到化解不利,助益吉气,良好气场来助力人生。
2
风水装修设计效果如何
精装修房是目前大趋势,很多人为了方便,都是直接购买精装房,但在风水方面并没有讲究,购买后入住前是需要进行局部改造更好,这样住后安心,对公司发展也好。
4
精装修房可以局部改造吗
5
专业风水师和专业团队
我们是专业风水装修设计,以易德轩首席风水大师铁笔居士为主进行风水凤计布局,再配合各地方专业设计团队进行设计,目前我们各地有合作团队配合。
风水装修除了理顺气场,就是进行设计化解不利影响,对外环境及内环境都要进行全面化解并加强气场提升,设计就是针对房子问题进行改造成和摧化吉气。
8
房子有影响能化解吗
风水是专业内容,我们铁笔居士有三十年专业风水经验,通过风水布局后装修阳宅,让住者安健幸福,财运丰厚,家庭和睦,让公司商业发展顺畅。
7
风水装修设有什么效果
9
房子交给我们有什么好
你将房子交给我们来进行设计,我们提供全程服务,从图纸设计,施工图配合,VR视频效果图及施工过程跟踪指导,软装吉祥摆放全程为止。
11
软装设计方面有那些
在软装方面,我们通过业主的经营情况和实现中情形进行建议,并可以为业制定个性化吉祥摆件摆设,没有明显的风水元素和美观、形象化等。
公司商业网点主要是人气和钱财相关,我们在设计上定好财位,色彩和整体配合老板命理来设计,摆放摧财吉祥的及形象设计,公司人员分布设计等。
14
公司商业能做些什么
工厂企业集团之类,可以通过建设定向定门位及办公楼设计,厂矿车间设备摆放和内部路向,财务、老板位、主要部门及门厅设计和室外景观设计。
13
工厂企业能做些什么
15
大平层房能做些什么
家居是以健康、和睦及财运加强这几个方面为主,配合空间合理运及,气场流畅,吉利摧发,凶气压制化解,主人房安排和文昌等位定位和布局。
我们目前针对企业工厂、公司商业及别墅、大平层、大房业主为主,并且提供全方位全程服务方案,从基础设计做起,直到全程结束业主入住为止。
12
风水装修设计针对那些
我们合作单位都是通过多次配合后达成合作设计,目前我们在苏州、上海、广东、青岛、杭州、南京这些地方有合作单位,可以上门测量及按要求进行设计和施工。
10
目前那些地方有合作设计
我们合作专业团队可以根据易经数理,风水元互要求,再以专业设计出豪华装,个性装及各种风格装修设计来,针对不同客户来全面设计,达到满意效果为止。
6
装修设计有否讲究
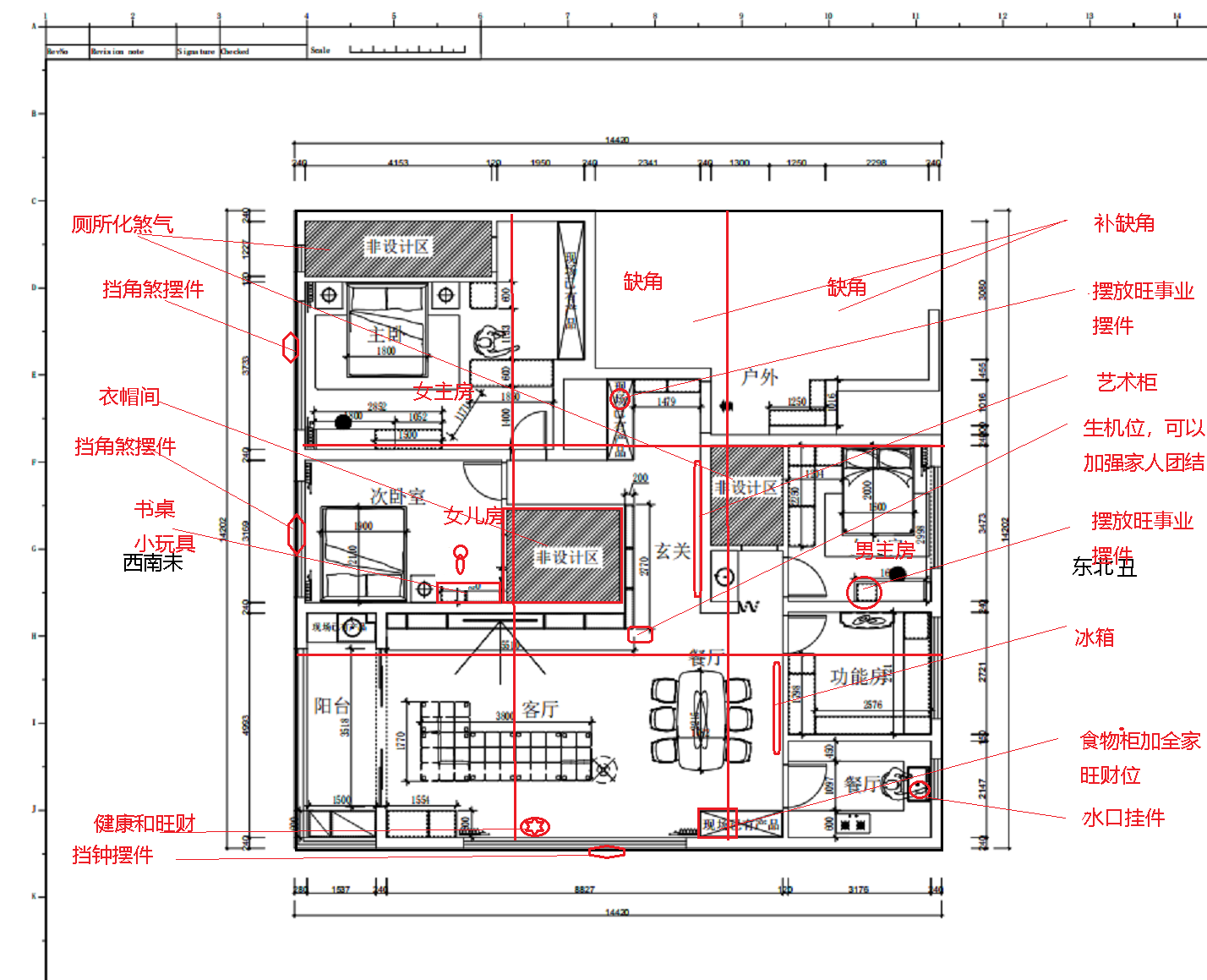
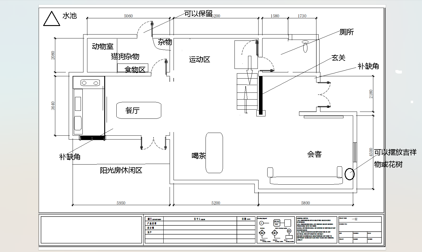
易德轩风水设计效果图
易德轩风水装修设计平面设计图
热门宝贝
[名字知识] 好听又旺运!快看看你名字
2026-04-23
名字是我们最鲜明的代号,更蕴藏着许多不同层次的意义
[风水专题] 招财风水如何助你聚财纳福
好的商铺风水可以护佑店主精力充沛,人气旺盛,财运滚
[生肖开运] 2026丙午年哪些生肖收
农历新年过后,大家又都开始忙碌于工作、事业或生意业
[生肖开运] 今日打麻将财位 今日打麻
打麻将对很多人来说是一个消遣时间、充实日常生活的方
上新宝贝
2026年心愿加
太岁
市场价:¥399.00
价格:¥585.00
销量:1981
重量:0.000 KG
九运家居九星专业
家居布局
市场价:¥0.00
价格:¥295.00
销量:2256
九运离火九星风水
风水摆件
价格:¥6800.00
销量:23
2026年化太岁
价格:¥188.00
销量:288
2026年心愿加强版化太
九运家居九星专业化解挂件
九运离火九星风水摧旺招财
2026年化太岁平安版太
商城资讯